
Pinetree Hill: A Definitive Analysis of District 21’s Residential Renaissance and Investment Trajectory
1. Executive Summary
The residential real estate landscape of Singapore is characterized by a constant tension between preservation and modernization.
Particularly in mature districts where historical architectural typologies collide with contemporary urban planning demands.
Pinetree Hill, a joint venture between UOL Group Limited and Singapore Land Group (SingLand).
Represents a pivotal intervention in the Ulu Pandan and Mount Sinai enclave of District 21.
As the first major private residential launch in this specific precinct in fourteen years, the development carries the weight of significant market expectation, serving as a litmus test for demand in the Rest of Central Region (RCR) amidst a high-interest-rate environment and recalibrated cooling measures.1
This report provides an exhaustive, institutional-grade analysis of Pinetree Hill, examining its architectural merits, locational attributes, pricing strategy, and investment potential through a multi-dimensional lens.
Our findings indicate that Pinetree Hill is not merely a housing project but a strategic infill development that capitalizes on the scarcity of new supply in a mature estate.
With a site area of approximately 242,561 square feet and a low plot ratio of 2.1 (effectively built to 2.3).
The project distinguishes itself through a radical “nature-first” philosophy, dedicating 88% of its land to landscaping and facilities—a figure substantially higher than the market average of 70-80%.3
The analysis suggests that while the entry price point—averaging roughly $2,236 to $2,500 per square foot (psf)—commands a premium over neighboring resale freehold properties.
It is justified by the “first-mover” advantage in a rejuvenating precinct, the superior efficiency of modern layouts, and the impending connectivity boost from the Cross Island Line (CRL).
Furthermore, the development’s proximity to the expanding Clementi Nature Corridor and the prestigious Henry Park Primary School creates a dual-demand driver, appealing equally to nature-centric owner-occupiers and education-focused families.5
The emergence of the neighboring Pine Grove Parcel B site, marketed as Nava Grove, introduces a layer of immediate competition that necessitates a nuanced comparative analysis.
This report will demonstrate that while competition exists, the distinct architectural language and early entry pricing of Pinetree Hill position it as a defensive asset with significant upside potential as the broader Ulu Pandan Master Plan is realized.7
2. Strategic Context and Market Positioning
2.1. The Renaissance of Ulu Pandan: A Historical Perspective
To fully appreciate the strategic significance of Pinetree Hill, one must first deconstruct the historical and morphological evolution of the Ulu Pandan and Pine Grove precinct.
For decades, this area has been defined by the “garden city” ideals of the 1970s and 1980s, manifested in large, sprawling developments such as Pandan Valley, Pine Grove (HUDC), and Ridgewood Condominium.
These architectural stalwarts, while beloved for their generous internal floor plates and open spaces, are aging assets.
The lack of significant new private launches since 2009/2010 has resulted in a stagnation of architectural innovation in the area.
Creating a latent, pent-up demand for modern condominium facilities and efficient floor plates that cater to contemporary family demographics.1
The government’s strategic decision to release the Pine Grove (Parcel A) site via the Government Land Sales (GLS) programme was a calculated move to rejuvenate the aging estate.
UOL and SingLand secured the site in June 2022 with a bid of $671.5 million, translating to a land rate of $1,318 per square foot per plot ratio (psf ppr).3
This bid was fiercely contested, edging out competitors by a mere $800 difference between the top and second bids.
This razor-thin margin signals a robust developer consensus regarding the location’s unfulfilled potential and the resilience of demand in District 21.
The narrative here is one of precinct rejuvenation; Pinetree Hill serves as the catalyst that will likely re-rate the valuation of the entire neighborhood, bridging the price gap between the older resale assets and the new RCR benchmark.
2.2. Developer Pedigree and Operational Synergy
The partnership between UOL Group and Singapore Land Group is a fundamental component of the project’s risk profile and quality assurance mechanism.
In a market increasingly bifurcated by developer reputation, the UOL-SingLand alliance offers a significant “safety flight” for buyers.
Both entities are stalwarts of the Singapore property scene, with a proven track record of delivering high-quality residential projects that often set price and design benchmarks in their respective districts.
UOL Group, in particular, is renowned for its “Masterpiece” philosophy, a corporate ethos that prioritizes landscape integration and architectural excellence.
Their recent successes, such as Clavon and Avenue South Residence, demonstrate a capability to deliver large-scale projects with high functionality and aesthetic appeal.10
Notably, UOL’s projects frequently achieve high BCA CONQUAS scores, indicating superior construction quality, and they have recently been awarded the title of Top Developer at the EdgeProp Excellence Awards 2024/2025.12
Singapore Land Group (SingLand), as a subsidiary of UIC, brings extensive commercial and residential development acumen.
Their portfolio includes prestigious developments like The Trizon and Mon Jervois.3
The synergy between these two entities ensures that Pinetree Hill benefits from robust financial backing, deep technical expertise, and a shared commitment to architectural excellence.
Their joint acquisition of the Watten Estate Condominium en bloc site (now Watten House) further underscores their aggressive and confident expansion strategy in prime and city-fringe districts, reinforcing their dominance in the high-end segment.13
2.3. Macro-Economic Influences
Pinetree Hill entered the market during a period of calibrated cooling measures and elevated interest rates.
The Additional Buyer’s Stamp Duty (ABSD) hikes have dampened speculative demand from foreigners and investors owning multiple properties.
Consequently, the buyer profile for Pinetree Hill is overwhelmingly local, consisting of genuine upgraders and long-term investors.
This demographic shift favors projects with strong fundamental attributes—such as proximity to schools and transport nodes—over speculative “hype” projects.
The pricing strategy, therefore, reflects a balance between managing development costs (land, labor, materials) and remaining accessible to the upper-middle-class Singaporean demographic.
3. Location Analysis: Connectivity, Ecology, and Neighborhood Dynamics
3.1. The “Best of Both Worlds” Proposition
Pinetree Hill is marketed on the nuanced premise of offering the “best of both worlds”—the tranquility of the Bukit Timah nature reserves and the convenience of the Clementi mature estate.
This duality is the project’s strongest selling point but requires a critical analysis regarding accessibility and lifestyle integration.9
Geographically, the site sits in a valley-like formation, though the development itself is elevated.
It is flanked by Ulu Pandan Road to the north and the Pine Grove/Pandan Valley condominiums to the south and east.
This location offers seclusion, shielding residents from the immediate noise of the Ayer Rajah Expressway (AYE), yet providing relatively quick vehicular access to key arterial roads.
3.2. Transport Infrastructure and Connectivity
A critical assessment of Pinetree Hill’s connectivity reveals a reliance on vehicular transport or shuttle services in the short term, with significant public transport improvements programmed for the medium term.
3.2.1. MRT Accessibility: Current vs. Future
Currently, the connectivity metrics present a challenge for non-driving residents.
The nearest MRT stations are Dover (EW22) and Clementi (EW23), located approximately 1.0km and 1.3km away, respectively.14
For the average resident, this distance exceeds the comfortable daily walking threshold, particularly in Singapore’s tropical climate.
To mitigate this friction, the developer provides a shuttle bus service to Holland Village and Buona Vista MRT stations for the first year, a crucial interim solution.3
The transformative element for this precinct is the upcoming Maju MRT station (CR16) on the Cross Island Line (CRL), expected to complete around 2032.16
Located near Ngee Ann Polytechnic and the Singapore Institute of Management (SIM), Maju station will be significantly closer to Pinetree Hill than the existing East-West Line stations.
This future infrastructure is a vital component of the project’s capital appreciation thesis.
Real estate economics dictates that properties typically experience a “rail effect” price uplift upon the completion of nearby MRT lines, as connectivity to major employment hubs like Jurong Lake District (JLD) and Changi becomes seamless.18
The CRL will connect the west to the east, drastically reducing travel times to areas like Hougang and Ang Mo Kio.
3.2.2. Road Networks
For vehicle owners, the location is strategically advantageous.
The site offers direct access to Ulu Pandan Road, which connects seamlessly to Holland Road (leading to Orchard Road and Dempsey Hill) and Clementi Road (leading to the AYE and PIE).
- Orchard Road: Approximately 15 minutes drive via Holland Road.
- One-North/Buona Vista: Approximately 8-10 minutes drive, serving the tech and biomedical hubs.
- CBD (Raffles Place): Approximately 20 minutes drive during off-peak hours.
3.3. Education: The Henry Park Effect and Beyond
In the Singaporean residential context, proximity to elite primary schools is a tangible and robust value driver.
Pinetree Hill falls within the coveted 1-kilometer radius of Henry Park Primary School.2
Henry Park is a Gifted Education Programme (GEP) school and historically one of the most oversubscribed primary schools in the nation.
The implications for asset value preservation are profound. Properties within 1km of such top-tier schools typically command a price premium of 10-15% over comparable properties outside the zone.
This radius ensures a consistent, unending pool of resale buyers or tenants (young families) in the future, effectively insulating the asset from severe market downturns.
Beyond primary education, the surrounding area is a veritable education hub, hosting Pei Tong Primary School (also within 1km), NUS High School of Mathematics and Science, Nan Hua High School, Singapore Polytechnic, Ngee Ann Polytechnic, and the National University of Singapore (NUS).5
This density of educational institutions provides a robust rental catchment for academic staff, visiting professors, and foreign students, stabilizing rental demand.
3.4. Ecological Connectivity: The Clementi Nature Corridor
Pinetree Hill sits at the nexus of a major ecological transformation.
The Urban Redevelopment Authority (URA) and National Parks Board (NParks) are actively developing the Clementi Nature Corridor.
An 18km network of recreational routes that will link the Clementi Forest, Maju Forest, and the Rail Corridor.20
- Old Jurong Line Nature Trail: A new 7km trail running along the disused Old Jurong Railway Line will be progressively completed, enhancing recreational options.
- Clementi Forest Stream: Another 2km trail will link the stream to a new nature park in Ulu Pandan West.
For residents, this transforms the “nature” marketing pitch into a tangible lifestyle amenity. The ability to access hiking trails and park connectors directly from the doorstep aligns with the post-pandemic shift towards wellness-centric living, adding a unique qualitative value proposition that purely urban condos cannot match.
4. Site Architecture, Landscape Philosophy, and Design Innovation
4.1. Topography and Elevation Strategy
One of Pinetree Hill’s most distinct physical attributes is its topography.
The developers have intelligently leveraged the natural undulating terrain of the Pine Grove area.
The residential towers are elevated approximately 10 meters above street level.6
This engineering decision serves multiple functional purposes:
- Privacy & Noise Mitigation: Ground-floor units are effectively situated at a high vantage point relative to the public road (Ulu Pandan Road), mitigating privacy concerns and shielding residents from vehicular noise.
- Enhanced View Corridors: This elevation allows even lower-floor units to clear the tree line of the surrounding landed estates and streetscape, granting unobstructed views of the Clementi Forest to the north and the city skyline to the south from a lower starting floor than typical developments.
4.2. Biophilic Design by Henning Larsen
The landscape architecture is helmed by Henning Larsen (formerly Ramboll Studio Dreiseitl), a world-renowned firm celebrated for integrating blue-green infrastructure, water-sensitive urban design, and biodiversity into urban environments.22
Their involvement signals a departure from generic condominium landscaping toward a more rigorous ecological approach.
- Concept of Extension: The design is conceptualized as an extension of the Clementi Forest. The site coverage is a remarkably low 12%, leaving 88% of the land for greenery and facilities.1 This is significantly higher than the standard 80% landscape provision found in many “nature-themed” condos, reinforcing the developer’s commitment to the “forest” theme.
- PineTree Nest Pavilions: A signature feature is the “PineTree Nest” pavilions—nest-shaped structures suspended within the greenery, designed to mimic the organic forms of the forest canopy.6 These provide biophilic interaction points for residents, fostering a sense of being immersed in nature rather than merely observing it.
- Hydro-Spatial Design: The 50m lap pool, oasis pool, and kids’ play pools are interwoven with dense planting to create a resort-like atmosphere that cools the ambient temperature—a critical feature for a BCA Green Mark Platinum Super Low Energy development.24
4.3. Architectural Form and Façade
The development comprises three 24-storey towers.
The decision to limit the footprint to three slim towers rather than multiple dense blocks ensures maximum wind flow and light penetration across the site.
The architecture, designed by P&T Consultants 25, features a sleek, glass-heavy façade that contrasts sharply with the older, brutalist-style architecture of Pandan Valley and Pine Grove.
This modern aesthetic instantly revitalizes the skyline of the district, acting as a visual marker of the precinct’s regeneration.
The use of curtain walls and generous balcony spaces blurs the indoor-outdoor boundary, further integrating the living spaces with the surrounding landscape.
5. Comprehensive Unit Mix and Floor Plan Analysis
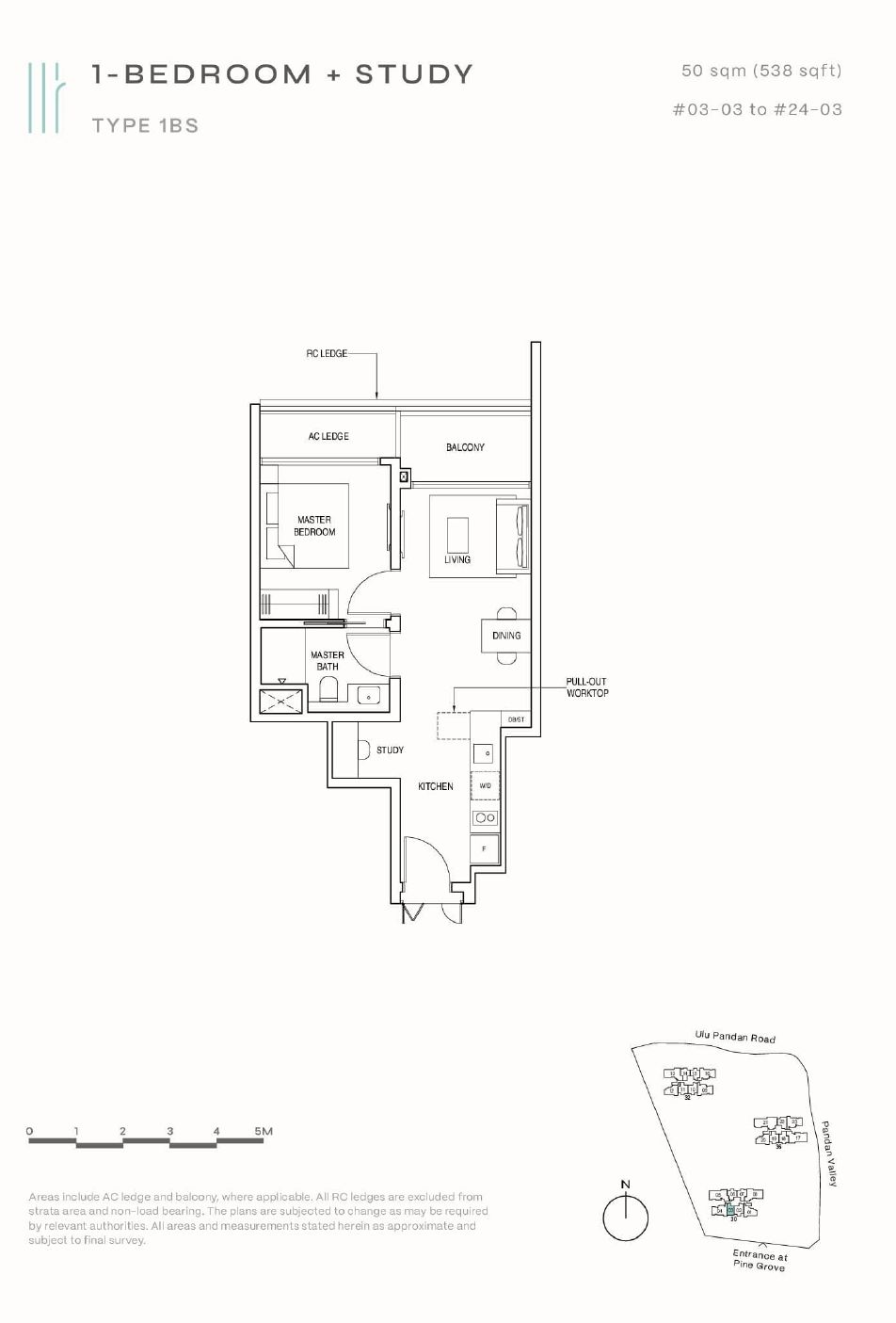
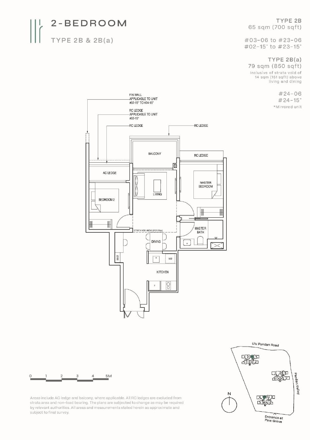
Pinetree Hill offers a total of 520 units, ranging from compact 1-bedroom plus study apartments to a singular, expansive penthouse.
The unit mix is carefully curated to appeal to a broad demographic, but there is a noticeable tilt towards owner-occupiers (families) given the dominance of 2-bedroom and 3-bedroom types.
Table 1: Pinetree Hill Unit Mix Distribution
| Unit Type | Size (sq ft) | No. of Units | % of Total | Target Demographic | Maintenance Fee (Est.) |
| 1-Bedroom + Study | 538 | 22 | 4% | Investors / Singles | ~$340 |
| 2-Bedroom / Premium | 700 – 915 | 226 | 43% | Young Couples / Small Families | ~$408 |
| 3-Bedroom / Premium | 969 – 1,421 | 159 | 31% | Established Families | ~$408 – $476 |
| 4-Bedroom (Pte Lift) | 1,292 – 1,668 | 90 | 17% | Upgraders / Multi-gen Families | ~$476 |
| 5-Bedroom (Pte Lift) | 1,733 | 22 | 4% | HNW Individuals | ~$544 |
| Penthouse | 2,874 | 1 | <1% | Ultra-HNW | ~$612 |
26
5.1. 1-Bedroom + Study (538 sq ft)

Interestingly, the entrance opens directly into the kitchen, and the study is designed as a small nook accessible from the kitchen area.29
This unconventional layout maximizes the living room width but may require creative interior design solutions for the study space.
Given the low quantum, these units are highly attractive to investors seeking entry into the D21 market for rental yields from the nearby One-North and Science Park hubs.
5.2. 2-Bedroom Variations (700 – 915 sq ft)

- Dumbbell Layout: Most units feature the “dumbbell” layout, where bedrooms are situated on either side of the living area.3 This design eliminates wasted corridor space, maximizing the usable floor area. It is highly preferred by tenants (providing privacy between flatmates) and small families alike.
- Premium vs. Standard: Premium units (2BP) include an extra bath or slightly larger living areas. The 2-Bedroom Premium + Study (797 sq ft) is particularly versatile. The study in these layouts varies in size; in some configurations, it is large enough to be used as a nursery or a guest room, offering flexibility that standard 2-bedders lack.29
5.3. 3-Bedroom Premium + Study (1,216 – 1,421 sq ft)

- Structural Efficiency: These units feature a proper foyer, which, while consuming some square footage, adds a sense of arrival and privacy—a feature often requested by buyers moving from landed homes or older, larger condos.30
- Kitchen & Utility: A major selling point is the enclosed kitchen, a rarity in modern mass-market 3-bedders. It comes with a household shelter (utility room) and a dedicated yard.31 This segregation of laundry and cooking zones is crucial for families who cook heavily.
- Ventilation: All bathrooms in the 3-bedroom units and larger feature windows for natural ventilation, a critical detail for mold prevention and hygiene that is often value-engineered out of other developments.
5.4. 4-Bedroom & 5-Bedroom with Private Lifts
The luxury tier of Pinetree Hill begins with the 4-bedroom units.
- Private Lifts: All 4 and 5-bedroom units come with private lift access, immediately elevating the exclusivity and appeal to high-net-worth buyers.30
- 4-Bedroom Deluxe vs. Premium:
- The 4-Bedroom Deluxe features a parallel kitchen layout.
- The 4-Bedroom Premium offers a more luxurious setup with a dry and wet kitchen concept, including an island in the dry kitchen. One side of the island is recessed, allowing it to function as a breakfast counter. Additionally, the Premium unit includes a “Jack and Jill” bathroom connecting bedrooms 3 and 4, and a walk-in wardrobe in the master bedroom, features absent in the Deluxe version.31
- 5-Bedroom: At 1,733 sq ft, this is a substantial apartment. It includes a powder room for guests (preserving the privacy of the family bathrooms) and a dedicated junior master suite with an ensuite bath. The master bathroom is upgraded with a bathtub and “his and hers” sinks. This layout is ideal for multi-generational living. The view from the living and dining areas, especially on high floors facing north (Stack 21), offers panoramic vistas over the Clementi Forest.31
6. Pricing Analysis and Financial Viability
6.1. Launch Prices vs. Land Cost
The land cost of $1,318 psf ppr necessitates a breakeven price of approximately $2,000 – $2,100 psf after factoring in construction costs, financing, marketing, and profit margins. The official launch guide prices reflected this reality, starting from:
- 1-Bedroom+S: ~$1.248m ($2,320 psf)
- 2-Bedroom: ~$1.588m ($2,269 psf)
- 3-Bedroom: ~$2.198m ($2,268 psf)
- 4-Bedroom: ~$3.173m ($2,456 psf)
- 5-Bedroom: ~$4.268m ($2,462 psf) 2
With an average transacted price hovering around $2,350 – $2,500 psf, Pinetree Hill is priced competitively for a new RCR launch.
When compared to recent District 15 (East Coast) or District 5 (Clementi/One-North) launches which have breached the $2,600-$2,800 psf mark, Pinetree Hill offers a compelling value proposition, particularly given its low-density attributes.
6.2. Comparative Market Analysis (New Launch Peers)
To evaluate true value, we must benchmark Pinetree Hill against its immediate peers:
- Nava Grove (Pine Grove Parcel B): This is the most direct competitor, located on the adjacent plot. The land for Parcel B was awarded to a joint venture between MCL Land and Sinarmas Land. With a preview slated for November 2024, Nava Grove will bring 552 units to market. Analyzing the bidding dynamics suggests that the land cost for Parcel B was comparable to Parcel A. Therefore, it is unlikely that Nava Grove will launch at a significantly lower price point without compressing profit margins to unsustainable levels. In fact, historically, subsequent phases (Parcel B) tend to launch at a premium over the initial phase (Parcel A/Pinetree Hill) as the precinct becomes more established. This creates a “protection” mechanism for Pinetree Hill’s pricing.7
- Ki Residences (999-year): Located at Sunset Way. Launch prices were lower (~$1,700 psf) due to an earlier land bid and location further from amenities. However, resale asking prices for Ki Residences (upon TOP in 2024) are likely to bridge the gap towards $2,200 psf. While Ki Residences has a superior tenure (999-year), Pinetree Hill offers better layout efficiency and closer proximity to the future Maju MRT.28
- The Reserve Residences: Located at Beauty World (Integrated Transport Hub). Prices here averaged $2,400-$2,600 psf. While Reserve offers direct MRT integration and a mall downstairs, Pinetree Hill offers a quieter, more exclusive environment at a lower psf entry point, appealing to a different psychographic of buyer.
- Clavon & Clement Canopy: Located in Clementi Ave 1. Both are fully sold and completed. Resale transactions for Clement Canopy are hitting $1,900 – $2,100 psf.35 Clavon, being newer, transacts slightly higher. Pinetree Hill’s premium of ~15-20% over these completed projects is standard for a brand-new product with a tenure reset and more advanced sustainability features.
6.3. Comparative Market Analysis (Resale Neighbors)
The starkest contrast exists with the surrounding older estates:
- Pandan Valley (Freehold): Transacting at ~$1,500 – $1,700 psf.
- Pine Grove (99-year, older): Transacting at ~$1,100 – $1,300 psf.
- The Gap: There is a significant price gap (>50%) between Pinetree Hill and these resale neighbors.36 Critics might argue Pinetree Hill is overpriced based on this gap. However, this disparity is typical between 40-year-old estates and new launches. The older estates feature massive unit sizes (e.g., 1,700 sq ft 3-bedders), meaning the quantum is often similar to Pinetree Hill’s smaller, more efficient units. Buyers are effectively choosing between “Space + Age + Renovation Costs” vs. “Efficiency + Modern Facilities + Zero Renovation.” The market trend shows a strong preference among younger families for the latter.
7. Investment Potential and Future Outlook
7.1. The “First Mover” Advantage
Pinetree Hill enjoys the distinct advantage of being the first of potentially several new plots in the Pine Grove/Ulu Pandan area to be developed.
The government has identified this precinct for intensification. Being the first launch sets the pricing benchmark.
Historically, early phases of a precinct’s redevelopment (e.g., the first launches in Lentor or Bidadari) see significant appreciation as subsequent plots are sold at higher land rates and launched at higher prices.
Pinetree Hill buyers are essentially buying into the “ground floor” of the Ulu Pandan rejuvenation story.2
7.2. Rental Demand Drivers and Yields
District 21 is a high-demand rental market due to three robust catchment pools:
- One-North & Science Park: A massive cluster of tech, media, and biomedical professionals. Pinetree Hill is a short drive or shuttle ride away.
- Education Sector: Professors and staff from NUS, SIM, and international schools (like UWCSEA Dover Campus). The proximity to tertiary institutions ensures a steady flow of academic tenants.
- Holland Village Expat Community: Expatriates who find D9/10 prices too inflated often spill over into D21 for the lifestyle and greenery.
- Projected Yield: With 2-bedroom rents in newer nearby condos (like Clement Canopy) ranging from $4,500 – $5,500 per month, Pinetree Hill can anticipate healthy gross rental yields of 3.5% – 4.0% upon completion.37 While not the highest in Singapore, the quality of the tenant profile in D21 is generally higher (corporate leases, stable professionals), resulting in lower wear-and-tear and fewer disputes.
7.3. Future Catalysts: URA Master Plan 2025 & Beyond
- Clementi Nature Corridor: As the URA and NParks connect the Clementi Forest, Maju Forest, and the Rail Corridor into a seamless green network, Pinetree Hill’s location becomes increasingly strategic. It sits at the nexus of this green belt. This enhances the “lifestyle” value of the property, making it resilient as a “wellness” asset—a category of real estate gaining premium status.20
- Cross Island Line (CRL): The completion of the CRL in ~2032 aligns perfectly with the medium-term holding period for Pinetree Hill buyers. This line will drastically improve connectivity to Jurong Lake District (the second CBD) and Changi Aviation Park. Properties near CRL stations are expected to see a structural re-rating in price.18
8. Sustainability and Smart Living
Pinetree Hill is not just green in color but green in function. It has achieved the BCA Green Mark Platinum Super Low Energy (SLE) certification, the highest tier of sustainability rating in Singapore.24
- Operational Implications: This certification mandates the use of best-in-class energy efficiency measures, including passive cooling architecture, solar power for common areas, and high-efficiency air-conditioning systems. For owners, this translates to direct cost savings in utility bills and potentially lower maintenance fees over the long term due to reduced energy consumption in common areas.
- EV Readiness: The development is future-proofed with 5 EV charging lots and infrastructure likely adaptable for expansion as electric vehicle adoption grows.25 This is a critical feature for future resale value as the Singaporean car market transitions to electric.
9. Interior Design and Showflat Aesthetics
The interior design of the showflats and the project itself involves a collaboration of top-tier firms.
Index Design Pte Ltd serves as the Project Interior Designer, ensuring consistency in the built-in finishes across all units.
The showflat interiors were crafted by SuMisura and CHALKED Interior Design, showcasing the potential of the spaces.40
- Aesthetic Direction: The interiors reflect a “warm minimalism,” utilizing natural textures and a muted color palette to complement the external greenery.
- SuMisura’s Influence: Known for their award-winning luxury interiors (e.g., South Beach Residence), SuMisura’s involvement in the showflat design signals the developer’s intention to position Pinetree Hill as a premium, luxury product rather than a standard mass-market condo.41 The use of sophisticated materials and smart spatial planning in the show units highlights the livability of the layouts, helping buyers visualize the potential of the spaces.
10. Critical Risk Factors and Mitigation
No investment is without risk. For Pinetree Hill, the primary concerns are:
- Distance to MRT (Short Term): Until the shuttle bus creates a routine or the Maju station opens (long term), the reliance on cars or feeder buses (Services 92, 92M) is a friction point for tenants who do not drive.14 Investors must budget for this when marketing the unit.
- Competition from Parcel B (Nava Grove): The adjacent plot will launch soon. If the developers of Parcel B decide to price aggressively to clear units, it could cap the immediate capital appreciation of Pinetree Hill in the sub-sale market. However, given rising construction costs and land prices, a significant undercut is unlikely. The shared amenities and rejuvenation of the area by two large developments often create a “cluster effect” that benefits both.7
- High Interest Rates: As with all current launches, the cost of borrowing is high. Investors need to ensure they have holding power, as rental yields (while healthy) may still barely cover mortgage interest rates in the initial years of the loan tenure.
11. Conclusion and Verdict
Pinetree Hill stands as a meticulously crafted residential product that addresses the specific, evolving needs of the post-pandemic homebuyer: proximity to nature, efficient layouts for hybrid work, and a flight to quality in a turbulent market.
UOL and SingLand have successfully balanced the site’s challenging topography to create a unique selling proposition of elevated, biophilic living.
For the Homeowner: Pinetree Hill is an exceptional choice, particularly for families targeting Henry Park Primary School or nature lovers who find the density of Clementi town too stifling. The biophilic design, premium fittings, and thoughtful layouts justify the price tag. The separation of active and passive zones ensures a high quality of life.
For the Investor: It represents a “defensive growth” asset. It may not offer the explosive immediate returns of a volatile emerging district, but its location in a mature, supply-constrained enclave near major employment hubs offers stability. The “First Mover” status in the Pine Grove rejuvenation story provides a clear exit strategy: riding the wave of future launches (Nava Grove) and infrastructure upgrades (CRL) that will inevitably re-rate the district.
In the lexicon of Singapore real estate, Pinetree Hill is not a speculative punt; it is a blue-chip acquisition in a district waking up from a long slumber, poised for a steady and sustainable ascent.
Detailed Analysis by Section
12. Detailed Location & Neighborhood Analysis
12.1. District 21: The Underrated Gem
District 21 (Upper Bukit Timah / Ulu Pandan / Clementi Park) often flies under the radar compared to the glamour of Districts 9, 10, or 15.
However, it is widely regarded by urban planners as one of the most livable residential districts in Singapore.
It effectively bridges the gap between the ultra-wealthy landed enclaves of District 10 (Holland Road) and the robust heartland amenities of District 5 (Clementi).
- Demographics: The area is characterized by a mix of upper-middle-class locals (often living in the older HUDCs or landed homes) and a significant expatriate population drawn to the international schools and greenery.
- Vibe: It is quieter, greener, and less congested than the East Coast or the Serangoon corridor. Pinetree Hill fits perfectly into this “quiet luxury” demographic, offering an enclave environment that is distinct from the high-density HDB towns.
12.2. The Sunset Way & Clementi Arcade Lifestyle
Residents of Pinetree Hill are a short distance from Sunset Way, a unique low-rise estate known for its al-fresco dining culture.
- Food & Beverage: The area hosts popular spots like Springleaf Prata Place, Olla Specialty Coffee, and various seafood restaurants like Chin Huat Live Seafood.43 These are destination dining spots that draw crowds from across the island, yet are a neighborhood convenience for Pinetree Hill residents.
- Clementi Arcade: A boutique mall nearby offering essential services like a Cold Storage supermarket, clinics, and bakeries like The Daily Scoop and Classic Cakes.43 This creates a “village” atmosphere that is highly prized by residents who wish to avoid the crowds of mega-malls.
12.3. Major Retail Nodes
While the immediate vicinity is laid back, major retail therapy is accessible within a short drive:
- The Clementi Mall: (5-7 min drive) A major heartland mall connected to the MRT, offering banking, high-street fashion, and a library.5
- Holland Village: (5-8 min drive) Recently revitalized with the opening of One Holland Village, a pet-friendly open-air mall that has brought fresh retail and dining concepts to the area. This is a major lifestyle draw for Pinetree Hill residents, providing a hip, expat-friendly environment.
- The Star Vista: (8 min drive) Located at Buona Vista, this architectural marvel offers extensive dining options and the Star Theatre for concerts.
13. Architectural & Site Plan Deep Dive
13.1. The “PineTree Nest” Concept: Biophilia in Action
Henning Larsen’s design pivots on the concept of “re-wilding.”
The PineTree Nest is not just a pavilion; it is a sculptural element.
By elevating these pavilions into the tree canopy, the architect blurs the line between the built environment and the Clementi Forest.
This is biophilic design at its finest—proven to lower stress and improve mental well-being for residents.
The integration of these nests encourages residents to spend time outdoors, engaging with the micro-climate created by the extensive planting.6
13.2. Facilities Zoning Strategy
The site plan is zoned intelligently to manage noise and activity levels:
- Active Zone: Located closer to the entrance, featuring the 50m lap pool, gym, and tennis court. This keeps the noise of active recreation away from the quieter residential stacks, preserving the tranquility of the homes.
- Passive Zone: Tucked towards the forest facing side, featuring the Oasis Pool and the smaller “pods” for reading or meditation. This area is designed for quiet contemplation.
- Family Zone: Includes the Kids’ Play Pool and BBQ pavilions, centrally located to allow parents to supervise children easily while socializing.
13.3. Stack Selection Guide
- The Nature Lover’s Choice: Stacks facing North (towards Clementi Forest) are the premium stacks. They offer unblocked greenery views that are rare in Singapore. However, buyers should note the URA Master Plan zoning; while the forest is currently green, long-term plans for the area should be monitored. Currently, the view is spectacular and secure for the foreseeable future.32
- The City View Choice: Stacks facing South (towards Pine Grove/City) offer distant skyline views. High floors here will clear the older condos and offer a beautiful night view of the city lights. These units also avoid the direct afternoon sun if angled correctly (South-East).
- The Quiet Choice: Inward-facing stacks overlooking the pools. These are generally safer bets for noise-sensitive buyers who want to avoid road noise from Ulu Pandan Road, although the 10m elevation already mitigates much of this.
14. Developer Track Record Analysis: The UOL Standard
Investors often pay a “brand premium” for UOL projects, and historical data suggests this is warranted.
UOL’s consistent delivery of high-quality products creates a halo effect for their developments.
- Clavon (D05): Launched in Dec 2020 at ~$1,600 psf. Current resale prices are approaching $2,200 psf. UOL’s efficient layouts and high-quality landscaping drove this appreciation.38
- Avenue South Residence (D03): A massive twin-tower development that pioneered PPVC technology. Despite its size, UOL maintained high quality, winning awards for sustainability and construction.11
- Watten House (D11): A luxury freehold project that sold extremely well despite high price tags ($3,000+ psf), proving UOL’s ability to capture the luxury market.13
For Pinetree Hill buyers, this track record provides assurance that the artist’s impressions will match the final product, and that the development will age well—a crucial factor for resale value 10 years down the road.
15. Detailed Financials & Rental Yield Projections
15.1. Maintenance Fees Breakdown
Estimated maintenance fees are reasonable for a full-facility condo, benefiting from the economies of scale provided by the 520 units.
- 1-Bed: ~$340 per month
- 2-Bed / 3-Bed: ~$408 per month
- 3-Bed Premium / 4-Bed: ~$476 per month
- 5-Bed: ~$544 per month
- Penthouse: ~$612 per month
27
These fees are competitive. Some luxury condos charge upwards of $600 for 2-bedders.
Pinetree Hill’s scale allows for cost-sharing efficiency, keeping holding costs manageable for investors.
15.2. Rental Scenarios and Tenant Profiling
- Scenario A (Expat Family): A family whose children attend UWCSEA (Dover Campus) or Tanglin Trust School. They require a spacious unit with facilities. They rent a 3-Bedroom Premium.
- Est. Rent: $7,000 – $8,000/month.
- Yield: ~3.5% (based on ~$2.6m purchase price).
- Scenario B (Single Professional): A tech worker at Shopee or Grab (One-North). They value privacy and proximity to work. Rents a 1-Bedroom+Study.
- Est. Rent: $3,800 – $4,200/month.
- Yield: ~3.8% (based on ~$1.3m purchase price).
While yields of 3.5-3.8% are not the highest in Singapore (some OCR condos hit 4.5%), the quality of the tenant profile in D21 is generally higher, ensuring rental stability.
16. Conclusion: The Verdict on Pinetree Hill
Pinetree Hill stands as a compelling proposition in the 2024/2025 market.
It successfully identifies a gap in the District 21 market—the lack of modern, efficient, luxury housing—and fills it with a product that is architecturally superior and thoughtfully designed.
While the distance to the MRT is a valid friction point, the project compensates with its seclusion, exclusivity, and strong connectivity to key economic nodes via road.
The “Henry Park Effect” provides a price floor, while the Cross Island Line provides the growth ceiling.
For the discerning buyer who values privacy, air quality, and reputable developers, Pinetree Hill is one of the most attractive RCR launches available.
It is a purchase for the long term, promising a lifestyle of serenity today and capital appreciation tomorrow.
Works cited
- Pinetree Hill – Singapore – New Launches, accessed November 19, 2025, https://new-launches.stackedhomes.com/pinetree-hill/
- Pinetree Hill preview: first major residential project in Mount Sinai in 14 years, accessed November 19, 2025, https://www.uol.com.sg/news/pinetree-hill-preview-first-major-residential-project-in-mount-sinai-in-14-years/
- Pinetree Hill Review: 88% Land For Facilities + Unblocked Views In Ulu Pandan – Stacked Homes, accessed November 19, 2025, https://stackedhomes.com/pinetree-hill-review/
- Pinetree Hill: How a next-gen luxury condo is transforming an ageing neighbourhood – Singapore Property News – EdgeProp, accessed November 19, 2025, https://www.edgeprop.sg/property-news/pinetree-hill-how-next-gen-luxury-condo-transforming-ageing-neighbourhood
- PINETREE HILL Location Map and Address – PINE GROVE – HOMY.SG, accessed November 19, 2025, https://homy.sg/project/pinetree-hill/location
- Pinetree Hill’s 520 units are dispersed over three 24-story residential towers that take up only 12% of the site’s size – Altura EC at Bukit Batok West Ave 8 By Qingjian & Santarli (Hot Launch 2023), accessed November 19, 2025, https://www.altura.com.sg/pinetree-hills-520-units-are-dispersed-over-three-24-story-residential-towers-that-take-up-only-12-of-the-sites-size/
- Nava Grove Condo Review: Or Is Pinetree Hill Better? – YouTube, accessed November 19, 2025, https://www.youtube.com/watch?v=M4wEzwGQErk
- Nava Grove Review! Pinetree Hill Case Study! 2024 SG New Launch Review! – YouTube, accessed November 19, 2025, https://www.youtube.com/watch?v=4QsXC297gi0
- The First New Launch In 14 Years In Ulu Pandan: Pinetree Hill And What You Need To Know – Stacked Homes, accessed November 19, 2025, https://stackedhomes.com/the-first-new-launch-in-14-years-in-ulu-pandan-pinetree-hill-and-what-you-need-to-know/
- UOL Group Ltd – Building and Construction Authority | Search For Quality Housing | Search and Compare CONQUAS Score and QM Score by Properties, Developers and Contractors, accessed November 19, 2025, https://www.bca.gov.sg/quality-housing-portal/ProjectDetail.aspx?cat=Developer&name=UOL+Group+Ltd&buildtype=Private%20Housing
- UOL wins prestigious Five Stars Residency Award for Avenue South Residence, accessed November 19, 2025, https://www.uol.com.sg/news/uol-wins-prestigious-five-stars-residency-award-for-avenue-south-residence/
- UOL Group caps a defining year with record launches and landmark wins – Yahoo News Singapore, accessed November 19, 2025, https://sg.news.yahoo.com/uol-group-caps-defining-record-123000021.html
- UOL wins Top Developer and Top Sustainable Developer awards, with multiple wins for four projects – Singapore Property News – EdgeProp, accessed November 19, 2025, https://www.edgeprop.sg/property-news/uol-wins-top-developer-and-top-sustainable-developer-awards-multiple-wins-four-projects
- Pinetree Hill Location Map | Latest (2025), accessed November 19, 2025, https://www.pinetree-hill.com.sg/location-map/
- Pinetree Hill (2025) | Near Dover & Clementi MRT – PropertyGuru, accessed November 19, 2025, https://www.propertyguru.com.sg/project/pinetree-hill-25497
- Maju MRT station – Wikipedia, accessed November 19, 2025, https://en.wikipedia.org/wiki/Maju_MRT_station
- Maju MRT Station – Land Transport Guru, accessed November 19, 2025, https://landtransportguru.net/maju-station/
- Cross Island Line – Land Transport Authority (LTA), accessed November 19, 2025, https://www.lta.gov.sg/content/ltagov/en/upcoming_projects/rail_expansion/cross_island_line.html
- Pinetree Hill Residences: Near Henry Park & Pei Tong – MySgProp, accessed November 19, 2025, https://www.mysgprop.com/pinetree-hill-residences/
- Two new trails at Clementi Nature Corridor to be progressively ready from 2023 – CNA, accessed November 19, 2025, https://www.channelnewsasia.com/singapore/clementi-forest-nature-corridor-new-trails-old-jurong-line-2078616
- New Jurong Town Hall Park Connector to add 2km of green trails to Clementi Nature Corridor | The Straits Times, accessed November 19, 2025, https://www.straitstimes.com/singapore/new-jurong-town-hall-park-connector-will-add-2km-of-green-trails-to-clementi-nature-corridor
- Project Details – Pinetree Hill™ @ Pine Grove (Updated – 2025), accessed November 19, 2025, https://www.pinetreehills.com.sg/project-details/
- Designing for people and nature | Henning Larsen, accessed November 19, 2025, https://henninglarsen.com/philosophy/landscape-architecture
- Super Low Energy Programme | Building and Construction Authority (BCA), accessed November 19, 2025, https://www1.bca.gov.sg/buildsg/sustainability/super-low-energy-programme
- Pinetree Hill Project Info | Facilities and Condo Map, accessed November 19, 2025, https://pinetreehillcondo.sg/info/
- Price List – Pinetree Hill By UOL & Singland Group | 69179007, accessed November 19, 2025, https://pinegroveresidence.sg/price-list/
- Pinetree Hill – New Launches Condo, accessed November 19, 2025, https://newlaunchescondo.sg/pinetree-hill/
- Pinetree Hill Price, accessed November 19, 2025, https://condodeals.sg/pinetree-hill-price/
- Pinetree Hill Condo Review: Easy Access by Car to Holland Village and Bukit Timah Road | Home & Decor Singapore, accessed November 19, 2025, https://www.homeanddecor.com.sg/property/condominium/pinetree-hill
- Pinetree Hill Review: First major condo launch in Ulu Pandan/Mount Sinai in 14 years (from … – 99.co, accessed November 19, 2025, https://www.99.co/singapore/condos-apartments/pinetree-hill/showflat-reviews
- Floor Plan – +65 6100-0721 – Singapore – Pinetree Hill, accessed November 19, 2025, https://www.thepinetree-hill.com/floor-plan/
- Pinetree Hill New Launch Review – Ulu Pandan’s First Condo Launch in 14 Years, accessed November 19, 2025, https://www.plbinsights.com/pinetree-hill-new-launch-review-ulu-pandans-first-condo-launch-in-14-years/
- Ulu Pandan URA Master Plan | Latest 2025 – Nava Grove, accessed November 19, 2025, https://www.navagrovecondo.sg/ulu-pandan-ura-master-plan/
- Ki Residences | Latest Price List, Updates & Available Units Here – PropertyGiant.com, accessed November 19, 2025, https://newlaunch.propertygiant.com/p/ki-residences/
- The Clement Canopy Condo – Clementi – Property How Much, accessed November 19, 2025, https://www.propertyhowmuch.sg/condo/The-Clement-Canopy__52904
- What would you buy? : r/singaporefi – Reddit, accessed November 19, 2025, https://www.reddit.com/r/singaporefi/comments/1f9otfi/what_would_you_buy/
- The Clement Canopy Condo last transacted Prices and Transaction Insights | PropertyGuru Singapore, accessed November 19, 2025, https://www.propertyguru.com.sg/project/the-clement-canopy-22866/last-transacted-prices-and-insights
- CLAVON: Clementi Apartment, Condominium | Details & Reviews | EdgeProp Singapore, accessed November 19, 2025, https://www.edgeprop.sg/condo-apartment/clavon
- Green Mark scheme hits 20th anniversary, with over 2500 buildings certified – Pinetree Hill, accessed November 19, 2025, https://www.pinetreehills.com.sg/2025/07/17/green-mark-scheme-hits-20th-anniversary-with-over-2500-buildings-certified/
- Pinetree Hill Project Details | Latest (2025), accessed November 19, 2025, https://www.pinetree-hill.com.sg/project-details/
- Awards – SuMisura, accessed November 19, 2025, https://sumisura.asia/awards/
- Step Inside the 5 Bedroom Type 5BP Showflat at Pinetree Hill – YouTube, accessed November 19, 2025, https://www.youtube.com/watch?v=HRdPSO5CXGk
- 8 Cafes, Eateries & Restaurants At Sunset Way You Must Visit – ladyironchef, accessed November 19, 2025, https://www.ladyironchef.com/2017/06/sunset-way-restaurants/
8 Cafes In Sunset Way You Must Not Miss On Your Singapore Trip In 2025 – Travel Triangle, accessed November 19, 2025, https://traveltriangle.com/blog/cafes-in-sunset-way-singapore-bdp/

